ГоловнаКаталогМедичні модуліЛабораторіяМодульна лабораторія
Модульна лабораторія
Модульна лабораторія
- Загальна площа156кв.м
- Габаритні розміри (ДхШхВ)13000х12000х2700мм
- Висота стелі2200мм
- Артикул товару218
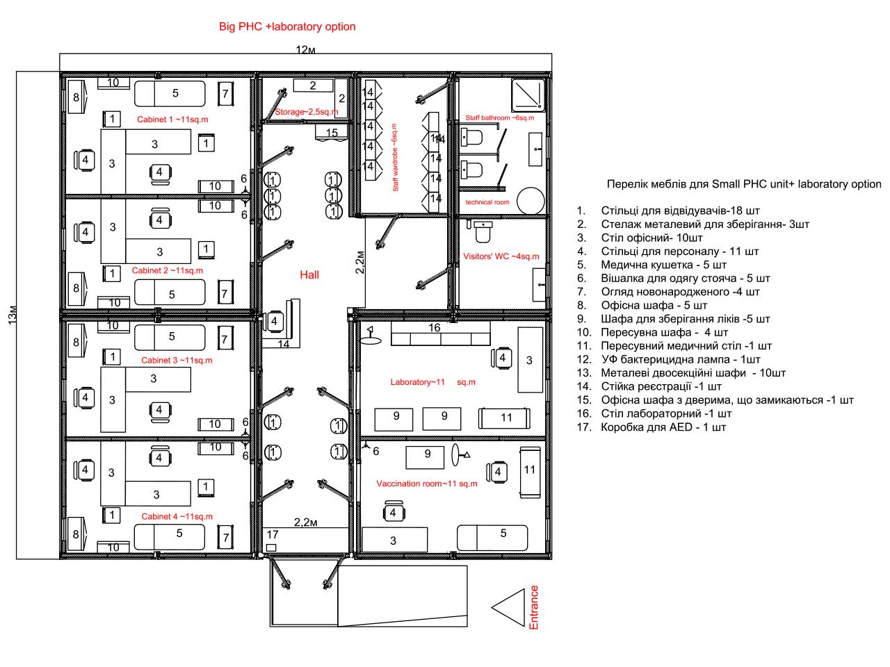
Модульна лабораторія — це автономний медичний комплекс площею 156 м², сформований із десяти швидкозведених модулів. Будівля включає приймальні кабінети, реєстратуру, санвузли, коридорну зону та приміщення для персоналу. Конструкція розроблена для встановлення на будь-якій рівній ділянці та має інклюзивний доступ.
Передбачена вентиляція, водопостачання, електромережа для всього комплексу та кондиціонування. Модульна лабораторія готова до експлуатації одразу після монтажу та може працювати як стаціонарна або тимчасова медична точка.
| Тип конструкції | Швидкозбірний модуль |
| Кількість модулів | 10 |
| Кількість будівель | 1 |
| Планування | 5 кабінетів для прийому пацієнтів Реєстратура Коридор Комора Роздягальня з душовими Санвузол для відвідувачів |
| Матеріали внутрішні | Сендвіч-панелі PIR-утеплення ЦСП Лінолеум Полімерний метал |
| Матеріали зовнішні | Сендвіч-панелі, полімерний метал |
| Фарбування | Епоксидний ґрунт + поліуретанова фарба |
| Інженерні мережі | Електромережа Вентиляція Вондиціонування Водопостачання Водовідведення |
| Комплектація | Меблювання Технічне обладнання Сантехніка Освітлення Інженерні системи |
| Особливості проєкту | Інклюзивний доступ Автономність |
| Термін реалізації проєкту | 20 робочих днів |
Модульна лабораторія створена як повністю автономний медичний комплекс для швидкого розгортання у будь-якому регіоні.
Будівля складається з десяти модулів площею 156 м² і включає п'ять кабінетів прийому, реєстратуру, комору, санвузли та роздягальню з душовими. У проєкті реалізовано інклюзивний доступ: встановлений зовнішній пандус та адаптовані входи.
Конструкція виконана з сендвіч-панелей із PIR-утепленням, що забезпечує енергоефективність і стабільний мікроклімат. Усі інженерні мережі — вентиляція, кондиціонування, водопостачання, водовідведення та електрика — інтегровані у весь комплекс. Лабораторія готова до використання одразу після монтажу, а швидкість реалізації (20 робочих днів) робить її ефективним рішенням для медичних установ, гуманітарних організацій та тимчасових центрів допомоги.
Проєкт демонструє можливості ХМОДУЛЬ у створенні невеликих, але повноцінно оснащених медичних будівель із високими вимогами до мобільності, безпеки та функціональності.
Дивіться також
Зв’язатися з нами!
- Телефон+38 077 757 10 77
- Emailadmin@xmodule.com.ua
- Адреса
вул. Бульварно-Кудрявська, 22, літера А, кімната 429 місто Київ, 01054
- Графік роботи09:00–18:00














