ГоловнаКаталогМедичні модуліМодульна лікарняМодульне прийомне відділення лікарні
Модульне прийомне відділення лікарні
Модульне прийомне відділення лікарні
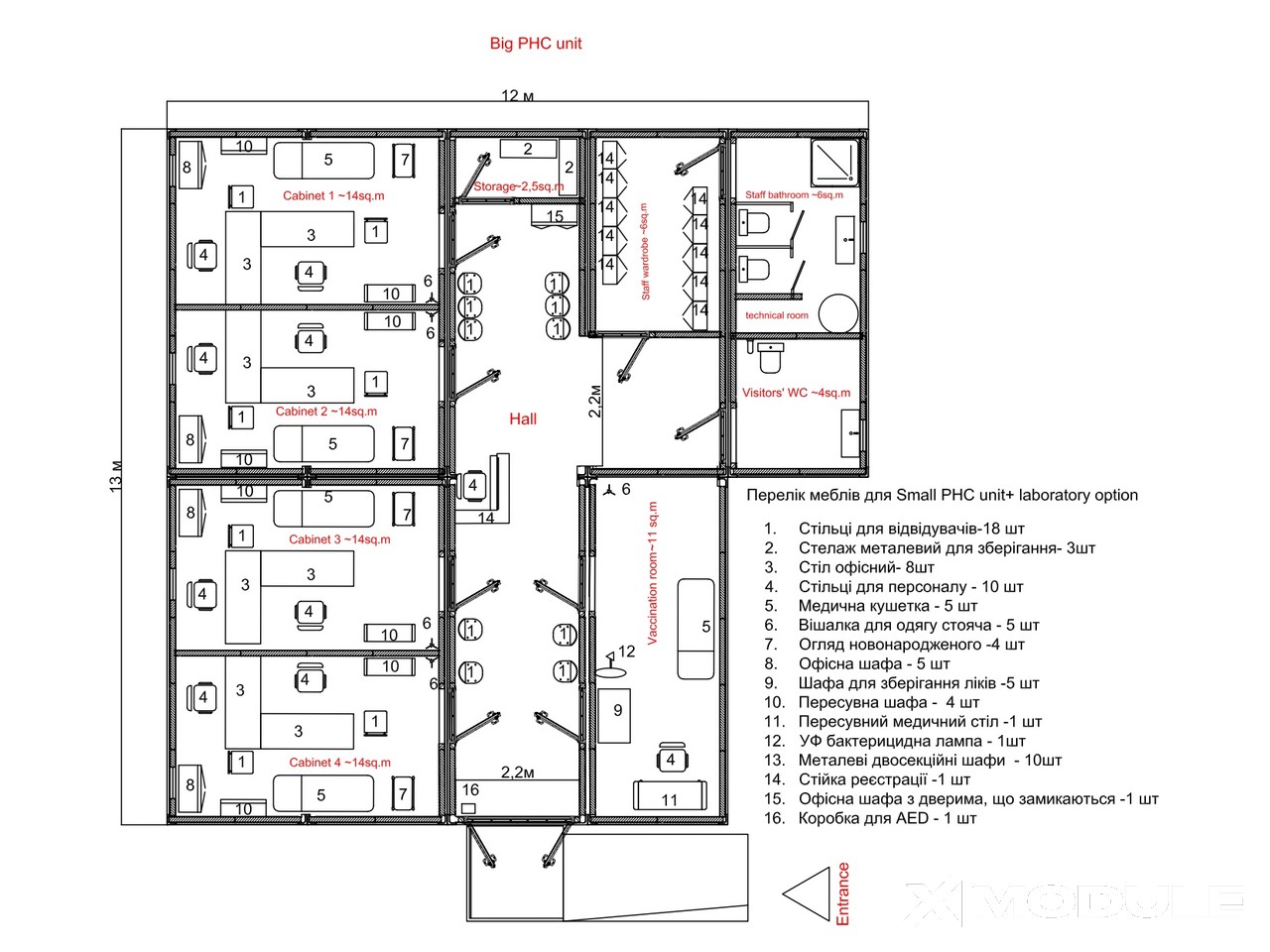
- Загальна площа140 м2
- Габаритні розміри (ДхШхВ)12250х12120х2700
- Висота стелі2200 мм
- Артикул товару:206
Модульна лікарня від ХМОДУЛЬ | X MODULE — це швидкозведений медичний комплекс, створений для прийому пацієнтів у комфортних і безпечних умовах. Будівля передбачає автономну роботу, інклюзивний доступ, повну інженерію та зручне планування для персоналу і відвідувачів.
| Тип конструкції | швидкозведена модульна будівля |
| Габарити | 12250×12120×2700 мм |
| Комунікації | електропостачання, водопостачання, водовідведення, вентиляція, кондиціювання |
| Обладнання | кондиціонери, освітлення, сантехніка |
| Матеріали | сендвіч-панелі, PIR-утеплення, ЦСП, лінолеум, полімерний метал |
| Зовнішнє оздоблення | сендвіч-панелі, полімерний метал, епоксидний ґрунт, поліуретанова фарба |
| Особливості | автономність; інклюзивний доступ; можливість встановлення на різні поверхні (бетон, асфальт, геошурупи) |
| Опції | генераторне підключення; енергоефективність; меблі власного виробництва |
| Планування | 4 кабінети лікарів, процедурна, санвузли для персоналу та відвідувачів, роздягальня, хол і комора |
| Комплектація | меблі, сантехніка, вентиляція, кондиціонери |
| Меблювання | столи, стільці, медичні шафи, кушетки |
| Доставка | так |
| Монтаж | так |
| Термін реалізації проєкту | 40 робочих днів |
Модульна лікарня — це приклад того, як швидко можна розгорнути повноцінне приймальне відділення без втрати якості. Комплекс з 9 модулів спроєктовано так, щоб забезпечити ефективну роботу лікарів і комфорт пацієнтів.
Будівля повністю автономна — може працювати як від міської мережі, так і від генератора. Передбачено пандус для інклюзивного доступу, систему вентиляції, кондиціонування, освітлення та водопостачання.
Проєкт модульної лікарні став прикладом комплексної реалізації «з нуля» — від розробки до монтажу за короткий термін. Під час будівництва врахували особливості рельєфу ділянки, забезпечили інклюзивний доступ та автономність роботи комплексу.
За два місяці було зведено повноцінне приймальне відділення для чотирьох лікарів — з усіма зручностями для персоналу й пацієнтів.
Комфорт забезпечили меблі власного виробництва, надійність — сертифіковані матеріали, а сучасний вигляд і функціональність — продумані технічні рішення та нові технології.
Дивіться також
Зв’язатися з нами!
- Телефон+38 077 757 10 77
- Emailadmin@xmodule.com.ua
- Адреса
вул. Бульварно-Кудрявська, 22, літера А, кімната 429 місто Київ, 01054
- Графік роботиПн - Пт 9:00 - 18:00










