ГоловнаКаталогМедичні модуліМедичний пунктФельдшерський пункт
Фельдшерський пункт
Фельдшерський пункт
- Загальна площа30кв.м
- Габаритні розміри (ДхШхВ)6878х5160х2700мм
- Висота стелі2250мм
- Артикул товару223
- Вартість від980 000,00 грн
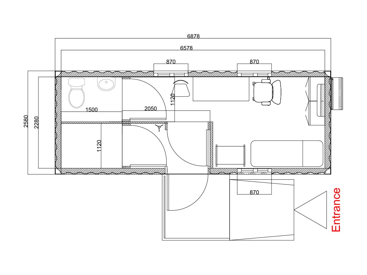
Мобільний фельдшерський пункт площею 30кв.м, розроблений для оперативного розміщення медичного персоналу та прийому пацієнтів у будь-яких умовах. Конструкція передбачає інклюзивний доступ, автономність і можливість монтажу на будь-яку поверхню. Всередині організовано окрему оглядову кімнату, приймальну з місцями очікування, санвузол і тамбур.
| Тип конструкції | Швидкозбірний модуль |
| Кількість модулів | 2 |
| Кількість будівель | 1 |
| Планування | Тамбур Приймальня на 6 місць Санвузол Оглядова кімната з ліжком |
| Внутрішнє оздоблення | Сендвіч-панелі Полімерний метал ЦСП Лінолеум |
| Зовнішнє оздоблення | Сендвіч-панелі Полімерний метал |
| Утеплення | PIR |
| Інженерні мережі | Електромережа Водопостачання Водовідведення Вентиляція Кондиціонування |
| Комплектація | Меблювання Технічне обладнання Сантехніка Освітлення Інженерні системи |
| Особливості проєкту | Інклюзивний доступ (пандус) Автономність Монтаж на будь-яку поверхню |
| Термін реалізації проєкту | 15 роб.днів |
Фельдшерський пункт створено як мобільний швидкозведений модуль із повноцінним внутрішнім зонуванням: тамбур для входу, приймальна зона з місцями очікування для шести людей, санвузол та простора оглядова кімната.
Конструкція розрахована на монтаж на будь-яку основу — бетон, асфальт чи геошурупи. Передбачене інклюзивне рішення у вигляді пандусу та правильних ширин проходів.
Внутрішнє оздоблення виконане з довговічних матеріалів: сендвіч-панелі, полімерний метал, PIR-утеплення й ЦСП. Передбачено електромережу, вентиляцію та кондиціонування. Завдяки компактності, автономності та швидкому монтажу модуль може запускатися в роботу практично відразу після встановлення. Це ефективне рішення для медичних програм, що потребують мобільності та швидкого розгортання інфраструктури.
Дивіться також
Зв’язатися з нами!
- Телефон+38 077 757 10 77
- Emailadmin@xmodule.com.ua
- Адреса
вул. Бульварно-Кудрявська, 22, літера А, кімната 429 місто Київ, 01054
- Графік роботи09:00–18:00















