ГоловнаКаталогМедичні модуліМодульна лікарняШвидкомонтований лікарняний гуртожиток
Швидкомонтований лікарняний гуртожиток
Швидкомонтований лікарняний гуртожиток
- Загальна площа156кв.м
- Габаритні розміри (ДхШхВ)12250х12120х2700мм
- Висота стелі2200мм
- Артикул товару204
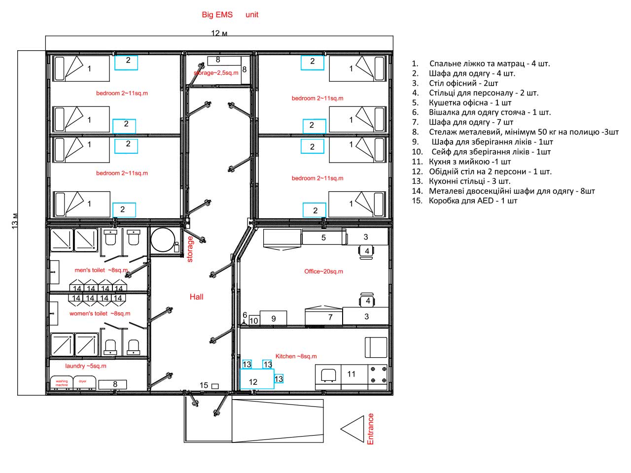
Модульний будинок для медичного персоналу від ХМОДУЛЬ — це швидкозведена автономна будівля, створена для комфортного та безпечного проживання працівників медичної сфери. Проєкт передбачає інклюзивний доступ, повноцінне зонування та облаштування усіх комунікацій. Будівля повністю готова до експлуатації одразу після монтажу.
| Тип конструкції | Швидкозбірний модуль |
| Кількість модулів | 10 |
| Кількість будівель | 1 |
| Планування | Кухня Комора Офіс Коридор Санвузол з душовими 4 житлові кімнати |
| Зовнішнє оздоблення | Сендвіч-панелі Полімерний метал Епоксидний ґрунт Поліуретанова фарба |
| Внутрішнє оздоблення | ЦСП Лінолеум Полімерний метал |
| Утеплення | PIR |
| Інженерні мережі | Електромережа Водопостачання Водовідведення Вентиляція Кондиціонування |
| Комплектація | Меблювання Технічне обладнання Сантехніка Освітлення Інженерні системи |
| Особливості проєкту | Інклюзивний пандус Об’єднання модулів у великі кімнати |
| Додатково | Сонячні панелі |
| Термін реалізації проєкту | 20 робочих днів |
Будинок розроблений як комфортне житло для медичного персоналу з повною функціональністю — від кухні до санвузлів і робочих зон. У будівлі передбачений інклюзивний доступ через пандус, що робить простір зручним для всіх користувачів.
Сучасні матеріали забезпечують енергоефективність, шумо- та теплоізоляцію. Завдяки модульній технології споруда була зведена в короткі терміни, без потреби у капітальному фундаменті.
Дивіться також
Зв’язатися з нами!
- Телефон+38 077 757 10 77
- Emailadmin@xmodule.com.ua
- Адреса
вул. Бульварно-Кудрявська, 22, літера А, кімната 429 місто Київ, 01054
- Графік роботи09:00–18:00














