ГоловнаКаталогОбороний секторМедпункт та шпитальВагон-кабінет лікаря
Вагон-кабінет лікаря
Вагон-кабінет лікаря
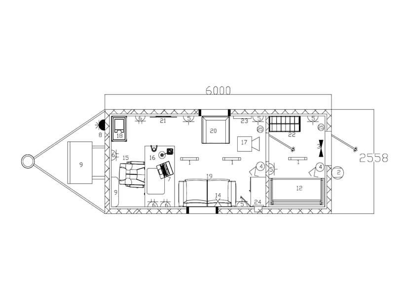
- Загальна площа15кв.м
- Габаритні розміри (ДхШхВ)2550х6000х2550мм
- Висота стелі2200мм
- Артикул товару303
Вагон-будинок або Мобільний кабінет лікаря від ХМОДУЛЬ — це автономний вагон-будинок на шасі, створений для надання психологічної допомоги в будь-якому регіоні країни. Завдяки мобільності, ергономічному плануванню та якісним матеріалам, модуль забезпечує комфортну атмосферу для роботи лікаря та прийому пацієнтів.
| Тип конструкції | Модуль на шасі |
| Кількість модулів | 1 |
| Кількість будівель | 1 |
| Планування | Приймальня Кабінет лікаря |
| Зовнішнє оздоблення | Профнастил Епоксидний ґрунт + поліуретанова фарба |
| Внутрішнє оздоблення | ЛДСП Автолін Сендвіч-панелі |
| Утеплення | Мінеральна вата |
| Інженерні мережі | Електромережа Вентиляція Кондиціонування |
| Комплектація | Меблювання Технічне обладнання Освітлення Інженерні системи |
| Особливості проєкту | Можливість брендового фарбування Мобільність конструкції |
| Термін реалізації проєкту | 15 робочих днів |
Проєкт мобільного кабінету лікаря розроблений як компактне, але повноцінно функціональне приміщення. Завдяки монтажу на шасі його можна швидко перемістити на нову локацію без додаткових витрат на демонтаж чи встановлення. Використані матеріали забезпечують теплоізоляцію, звукоізоляцію та комфорт для пацієнтів.
Модульні рішення служать соціальним ініціативам. Мобільний кабінет психологічної/медичної допомоги допомагає надавати підтримку військовим і цивільним у будь-якій точці країни.
Дивіться також
Зв’язатися з нами!
- Телефон+38 077 757 10 77
- Emailadmin@xmodule.com.ua
- Адреса
вул. Бульварно-Кудрявська, 22, літера А, кімната 429 місто Київ, 01054
- Графік роботи09:00–18:00






















