ГоловнаКаталогЖитлові модуліМодульний гуртожитокЖитловий модуль для персоналу
Житловий модуль для персоналу
Житловий модуль для персоналу
- Загальна площа156 м2
- Висота стелі2200 мм
- Артикул товару:219
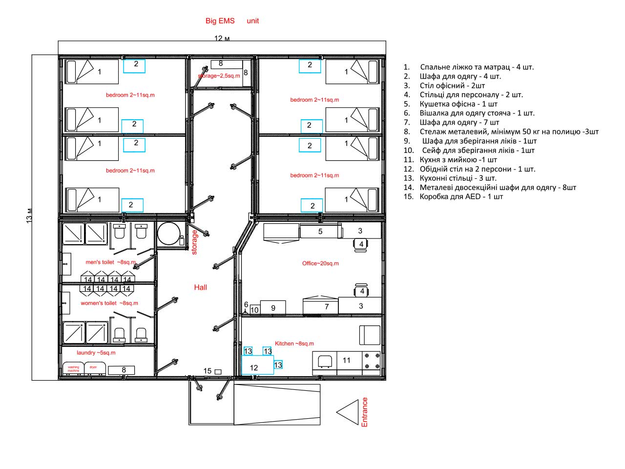
Житлова будівля для медичного персоналу — це автономний модульний комплекс, зібраний із десяти швидкозведених модулів загальною площею 156 м². Простір включає чотири житлові кімнати, кухню, офіс, комору, санвузол із душовими та коридорну частину.
Конструкція передбачає інклюзивний доступ завдяки обладнаному пандусу, повністю змонтовану електромережу та адаптацію до різних географічних умов. Будівля призначена для комфортного проживання персоналу та забезпечує стабільні умови для цілодобового перебування.
| Тип конструкції | Збірно-розбірний модуль |
| Кількість модулів | 10 |
| Кількість будівель | 1 |
| Планування | 4 житлові кімнати, кухня, комора, офіс, санвузол з душовими, коридор |
| Матеріали внутрішні | Сендвіч-панелі, PIR-утеплення, ЦСП, лінолеум, полімерний метал |
| Матеріали зовнішні | Сендвіч-панелі, полімерний метал |
| Фарбування | Епоксидний ґрунт + поліуретанова фарба |
| Інженерія | Електрична мережа, інклюзивний пандус |
| Водопостачання / водовідведення | Так / Так |
| Вентиляція | Так |
| Кондиціонер | Так |
| Меблювання | Так |
| Монтаж | Так |
| Доставка | Так |
| Терміни | 20 робочих днів |
| Призначення | Житлова будівля для медперсоналу |
| Особливості | Об’єднання модулів у великі кімнати, автономність, інклюзивний доступ |
Модульну житлову будівлю розроблено як функціональний комплекс для тривалого проживання медичного персоналу. Конструкція складається з десяти модулів, що формують цілісний житловий простір площею 156 м², де зручно розміщено житлові кімнати, кухонну зону, офіс, комору та санвузли з душовими.
У проєкті реалізовано інклюзивний доступ: змонтовано пандус та адаптовані входи. Модульний медичний корпус обладнано електричною мережею, водопостачанням, водовідведенням, вентиляцією і кондиціонуванням, що дозволяє використовувати будівлю цілодобово та в будь-яку пору року.
Конструкція виконана з енергоефективних сендвіч-панелей із PIR-утепленням, а зовнішні матеріали забезпечують довговічність та стійкість до кліматичних впливів. Комплекс демонструє можливості ХМОДУЛЬ у створенні сучасних житлових рішень, у яких поєднуються висока швидкість зведення, автономність, доступність та комфортне планування для персоналу.
Дивіться також
Зв’язатися з нами!
- Телефон+38 077 757 10 77
- Emailadmin@xmodule.com.ua
- Адреса
вул. Бульварно-Кудрявська, 22, літера А, кімната 429 місто Київ, 01054
- Графік роботиПн - Пт 9:00 - 18:00










