ГоловнаКаталогОфісні та комерційні приміщенняМодульний офісМодульний офіс двоповерховий
Модульний офіс двоповерховий
Модульний офіс двоповерховий
- Загальна площа360кв.м
- Габаритні розміри (ДхШхВ)14700х12100х5400мм
- Висота стелі2200мм
- Артикул товару207
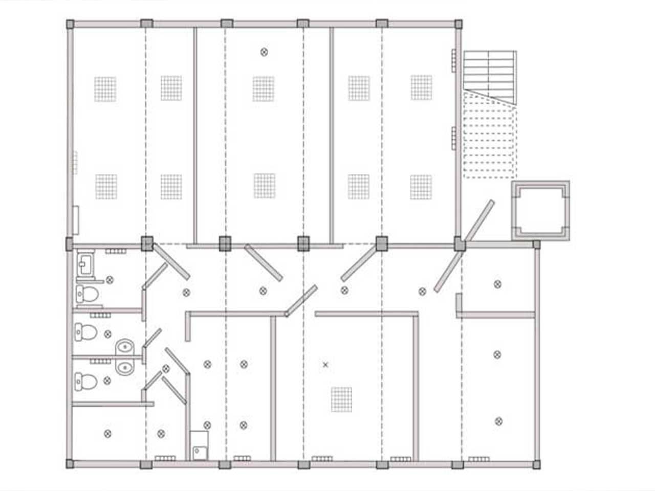
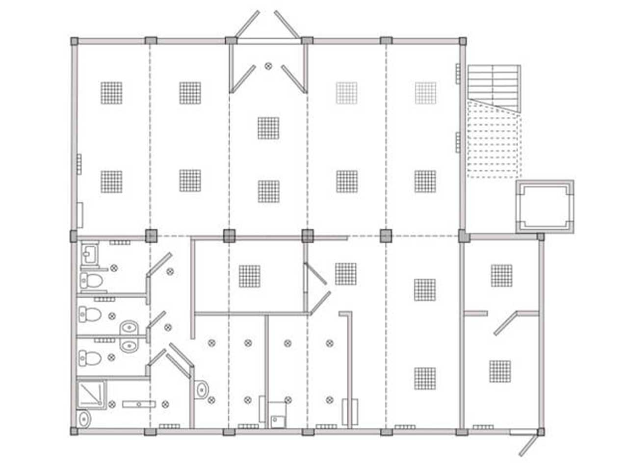
Двоповерховий модульний офіс від ХМОДУЛЬ — це сучасна, мобільна та функціональна будівля, створена для комфортної роботи персоналу. Проєкт передбачає інклюзивність (наявність ліфта), великі панорамні вікна, автономність і швидке розгортання на будь-якій ділянці.
| Тип конструкції | Швидкозбірний модуль |
| Кількість модулів | 22 |
| Кількість будівель | 1 |
| Поверховість | 2 |
| Планування | Великі кімнати для працівників Санвузли Гардеробні Комори |
| Зовнішнє оздоблення | Сендвіч-панелі Епоксидний ґрунт Поліуретанова фарба |
| Внутрішнє оздоблення | Сендвіч-панелі Скляні елементи |
| Утеплення | Базальтова вата |
| Інженерні мережі | Електромережа Водопостачання Водовідведення Вентиляція Кондиціонування Опалення |
| Комплектація | Меблювання Технічне обладнання Сантехніка Освітлення Інженерні системи |
| Особливості проєкту | Два поверхи Інклюзивність (ліфт) Зовнішня драбина Панорамні вікна Автономність |
| Додатково | Можливість масштабування |
| Термін реалізації проєкту | 45 робочих днів |
Під час реалізації важливо було поєднати два рівні в єдину функціональну будівлю з урахуванням інклюзивних вимог — тому офіс обладнали ліфтом, а зовнішні сходи забезпечили швидкий доступ до другого поверху.
Панорамне скління створює природне освітлення та відчуття відкритого простору.
Монтаж та налаштування інженерних систем виконані в короткі терміни — офіс повністю готовий до роботи одразу після встановлення.
Цей двоповерховий офіс — приклад того, як технологічність забезепечує інклюзивність
Цей проєкт як доказ, що інклюзивні рішення цілком реально впроваджувати навіть у двоповерхових модульних будівлях. Це приклад зручного й продуманого офісу формату open space, який поєднує комфорт, функціональність і сучасний підхід до організації простору.
Дивіться також
Зв’язатися з нами!
- Телефон+38 077 757 10 77
- Emailadmin@xmodule.com.ua
- Адреса
вул. Бульварно-Кудрявська, 22, літера А, кімната 429 місто Київ, 01054
- Графік роботи09:00–18:00








